actividades e imágenes

Ayuntamiento De Saynatsalo Planos

Ayuntamiento De Saynatsalo Urbipedia Archivo De Arquitectura

Riunet Upv Es Bitstream Handle Memoria Anna huerta gallardo Pdf Sequence 2

Ayuntamiento De Saynatsalo

Planos De Casas Blog Dedicado A La Arquitectura Iconica Del Siglo Xx Pagina 2

Mi Moleskine Arquitectonico Alvar lto Ayuntamiento De Saynatsalo

Ayuntamiento De Saynatsalo Arquiscopio Archivo

21oct13 Viajé a Finlandia buscando a todo un maestro Alvar lto La calidad de las imágenes no es muy buena porque proceden del escaneado de diapositivas Era el año 00 Ver más ideas sobre viajar a finlandia, alvar aalto, finlandia.

Ayuntamiento de saynatsalo planos. Con el objetivo de mostrar la obra urbana de lto frente a la ortodoxia moderna, se ha elegido el plan director de Säynätsalo como muestra representativa de su trabajo Durante los años en los que se dedica al plan de Säynätsalo (), lto abarca tanto la escala regional plan director como la arquitectónica. Plano de ordenacin Urbana de Syntsalo, 1945, Alvar lto invitado en 1945 por H Brommels lto defini el lugar de implantacin del edificio del ayuntamiento, en una suave colina en la extremidad de una plaza triangular delimitada por dos calles que parten de la calle principal que da acceso a la isla. Desde Delirious New Blog “En 1949, el empresario Enso Gutzeit convocó un concurso para la realización del ayuntamiento de Säynätsalo (), el cual ganó Alvar lto El proyecto está influido por un viaje que el arquitecto realizó a Italia El edificio se ubica según los cuatro puntos cardinales en un terreno ligeramente inclinado hacia el sur.

I02 Base 5000 Principado Escala 1/000 Tamaño A1 pdf, Kb ;. AYUNTAMIENTO DE SAYNATSALO Jyvaskyla, Finlandia Salas Mendoza Romulo David Salas Mendoza Romulo David Salas Mendoza Romulo David Salas Mendoza Romulo David CONCLUSIONES lto creó lugares poéticos debido a una preocupación por las necesidades del hombre y de un amor intenso de su paisaje nativo No se involucró en las teorías abstractas, pero se interesó en. Tu contenido Suscripción a contenidos, trámites que necesitas conocer y eventos que más te gustan en Madrid y en tu distrito Tus trámites Toda la información sobre trámites y gestiones, tanto para ciudadanos como empresas, y ahora más fáciles de realizar en línea desde "Mi Carpeta" Comparte Ahora es más fácil compartir en madridesEn un sólo clic comparte todas las páginas.

SeeArch es un buscador de arquitectura y además pone a disposición de arquitectos y cualquier persona interesada en la arquitectura una nueva herramienta que facilite conocer obras de interés en cualquier parte del mundo. A Säynätsalo's Town Hall model It was designed by the Finnish architect Alvar lto Saynatsalo Town Hall (Finland). Occupying the center of a small farming town in Finland, Säynätsalo’s Town Hall might appear almost too monumental for its context Designed by Alvar lto in 1949, the town hall is a study in.

Discussion Saynatsalo Town Hall Commentary "It is intimate and idiosyncratic, with an unusual layout directly responsive to the genius loci The various buildings forming the group—municipal offices, council chamber, library and officials' residences—are planned round a courtyard which is artificially raised above the surrounding wooded countryside by using the material excavated for the. Ayuntamiento de Säynätsalo, planos análisis El Plan para la comunidad industrial en la isla de Saynätsälo (1942) preveía el emplazamiento del futuro centro administrativo en la parte más alta del conjunto En enero de 1949 lto gana el concurso para este edificio cuya construcción acabará en 1952, transformado de inmediato por la. Saynatsalo's Town Hall Guardado por Артём Забелин 42 Movimiento Moderno Proyectos Arquitectonicos Finlandia Ayuntamiento Arquitectura Moderna Arquitectos Expresion Disenos De Unas Apuntes.

Ayuntamiento de Säynätsalo, descripción 414 Biografía de Utzon y explicación de la obra Breve análisis del edifico, fotos de maqueda y planos del mismo Breve comentario de la obra Wikipedia Alvar lto Blog con fotografías y explicación de la obra. El ayuntamiento de Säynätsalo se encarga de gobernar la ciudad y el municipio de Säynätsalo, región de Finlandia Occidental Este organismo público está presidido por el alcalde de Säynätsalo El edificio que ocupa actualmente es una de las obras más importantes del arquitecto finlandés Alvar lto y fue construido entre 1950 y 1952 Una de sus características más importantes es el patio central, el cual está elevado la altura de un piso respecto al terreno exterior La sala de. Con esta nueva web, el ayuntamiento de Piélagos se plantea facilitar una mejor comunicación y una visualización de todo lo que acontece en el Ayuntamiento de manera más eficaz a la vez que transparente.

Additional terms may apply. Plano de ordenacin Urbana de Syntsalo, 1945, Alvar lto invitado en 1945 por H Brommels lto defini el lugar de implantacin del edificio del ayuntamiento, en una suave colina en la extremidad de una plaza triangular delimitada por dos calles que parten de la calle principal que da acceso a la isla. Saynatsalo es una isla con grandes diferencias de nivel que se encuentra en el lago Pajanne Tiene aproximadamente tres mil habitantes que viven de una única y modesta industria El plan de equipamiento de 1945, la renovación del mercado central con el ayuntamiento y los edificios comerciales es un poco posterior.

Ocupando el centro de una pequeña ciudad agrícola en Finlandia, el Ayuntamiento de Säynätsalo puede parecer casi demasiado monumental para su contexto Diseñado por Alvar lto en 1949, el ayuntamiento es un estudio en oposición los elementos del clasicismo y lo monumental se mezclan con la modernidad y la intimidad para formar un nuevo punto central cohesivo para la comunidad. El ayuntamiento con el patio escalonado y la sala de mayor altura, evoca el esquema de Säynätsalo En el edificio de la biblioteca, elementos ortogonales y en forma de abanico son yuxtapuestos Este edificio evita entrar en competencia con el ayuntamiento, mostrándole una fachada alargada a de baja altura discretamente enfoscada en blanco. I01 Base Ortofoto Principado Escala 1/000 Tamaño A1 pdf, 2425 Kb ;.

Se trata de de Colin Rowe en Collage City 5, podría una parada de autobús que, paralela a mos entender el edificio como un objeto la biblioteca, ayuda a definir un espacio con fachadas a un espacio urbano, y público acotado justo antes de entrar al como una textura capaz de generar sus ayuntamiento. El ayuntamiento de Saynatsalo , es el mas importante de los que hizo lto en toda su carrera profesional, por lo que significa para este pueblo finlandes y por su gran patriotismo plasmado en sus obras Es una obra interesante. Prefeitura de Saynatsalo Arquiteto Alvar lto Projetado em 1949 Ano de Construção 1950 1952 Localização Säynätsalo, Finlândia Algumas partes deste artigo foram traduzidas usando o mecanismo de tradução do Google Entendemos que a qualidade desta tradução não é excelente e estamos trabalhando para substituílos com.

Todo sobre los servicios socioculturales de Etxebarri Cultura, Juventud, Deporte, Euskera Guía Sociocultural Guía WEB Y TRÁMITES Guía de navegación por esta web etxebarrinet y realización de trámites telemáticos a través de ella Guía Web y Trámites. Plano de Madrid Wit (300 Kbytes pdf) Plano de Madrid Teixeira (339 Kbytes pdf) Plano de Madrid Espinosa (266 Kbytes pdf) Plano de Madrid Ayuntamiento de Madrid, 18 Accesibilidad Aviso legal Protección de datos YouTube Instagram Facebook. Persiste el viii ayuntamiento en rescate de espacios pÚblicos y jornadas de retiro de basura pesada en la ciudad ofrece gobierno municipal apoyo a familias afectadas por incumplimiento en la manutenciÓn e impago de pensiÓn alimenticia reitera araceli brown la importancia de respetar los protocolos sanitarios en cinco comunidades con mayores casos de contagios por covid19 ofrece apoyo.

Plano de ordenacin Urbana de Syntsalo, 1945, Alvar lto invitado en 1945 por H Brommels lto defini el lugar de implantacin del edificio del ayuntamiento, en una suave colina en la extremidad de una plaza triangular delimitada por dos calles que parten de la calle principal que da acceso a la isla. AYUNTAMIENTO DE SAYNATSALO 1 Alvar lto Tras la Segunda Guerra Mundial, alrededor de 19 nació un impulso, donde arquitectos adoptaron los valores supuestamente eternos Claridad en la forma, proporciones elegantes y poca ornamentación 30 años mas joven que Frank Lloyd Wright y aproximadamente una década mas joven que Le Corbusier y Mies Van der Rohe, lto fue uno de los arquitectos. Ocupando el centro de una pequeña ciudad agrícola en Finlandia, el Ayuntamiento de Säynätsalo puede parecer casi demasiado monumental para su contexto Diseñado por Alvar lto en 1949, el ayuntamiento es un estudio en oposición los elementos del clasicismo y lo monumental se mezclan con la modernidad y la intimidad para formar un nuevo punto central cohesivo para la comunidad.

Sus edificios más famosos son las oficinas e imprenta de un periódico en Turku (), la Biblioteca de Viipuri y el sanatorio antituberculoso de Paimio () View Show abstract. A pesar de que Finlandia es un país eminentemente plano es en esta región donde se elevan unas leves colinas desde las que el paisaje se abre y expande hasta el infinito en esa sucesión verde y azul de lagos entreverados con bosques y viceversa Y en medio de todo esto, Saynatsalo, que por su ayuntamiento la conocerán. Imagen 9 de 13 de la galería de Clásicos de Arquitectura Ayuntamiento de Säynätsalo / Alvar lto Piazza San Marco, Venecia, Italia Imagen Cortesía de Flickr usuario Scott Ingram.

El ayuntamiento de Säynätsalo se encarga de gobernar la ciudad y el municipio de Säynätsalo, región de Finlandia Occidental Este organismo público está presidido por el alcalde de Säynätsalo El edificio que ocupa actualmente es una de las obras más importantes del arquitecto finlandés Alvar lto y fue construido entre 1950 y 1952. Ayuntamiento de Saynatsalo Alvar lto Ayuntamiento de Saynatsalo Introducción Ganador del concurso para realizar el edificio del ayuntamiento en Säynätsalo, organizado por el empresario Enso Gutzeit en 1949, Planos Planos en AutoCad 2D Plantas y Alzados. Plano de ordenacin Urbana de Syntsalo, 1945, Alvar lto invitado en 1945 por H Brommels lto defini el lugar de implantacin del edificio del ayuntamiento, en una suave colina en la extremidad de una plaza triangular delimitada por dos calles que parten de la calle principal que da acceso a la isla.

El Ayuntamiento de Säynätsalo puede considerarse como una revisión de la arquitectura moderna por parte de lto, en donde logra desarrollar una versión propia y muy personal de los conceptos arquitectónicos defendidos por la moderidad. El Ayuntamiento de Säynätsalo se encarga de gobernar la ciudad y el municipio de Säynätsalo, Finlandia Occidental, Finlandia Este organismo público está presidido por el Alcalde de Säynätsalo El edificio que ocupa actualmente es una de las obras más importantes del arquitecto finlandés Alvar lto y fue construido entre 1950 y 1952. Información ciudadano granada ayuntamiento town hall Arranca gran Anillo Verde Comienza la plantación de los primeros 675 árboles del futuro skyline verde de Granada.

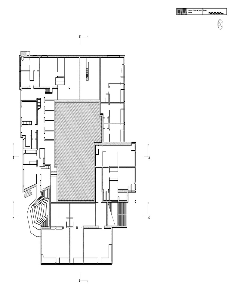
All unstructured text is available under the Creative Commons AttributionShareAlike License;. This page was last edited on 15 April 18, at 1537 Files are available under licenses specified on their description page All structured data from the file and property namespaces is available under the Creative Commons CC0 License;. AYUNTAMIENTO DE SAYNATSALO Jyvaskyla, Finlandia N TERCERA PLANTA PRIMERA PLANTA SEGUNDA PLANTA CORTE AA El edificio que se levanta en una cuesta relativamente empinada, esta construido entorno a un lugar central, el patio, tanto en su primera planta como en la segunda.

Capítulo de la serie "Arquitecturas" en que se examina el Centro Municipal de Säynätsalo en Finlandia de Alvar lto, una de las figuras más destacadas de la. Página web oficial del Ayuntamiento de Galapagar Plaza del Presidente Adolfo Suárez S/N 260 Galapagar (Madrid) Ayuntamiento 91 858 78 00. Director de Säynätsalo como muestra representativa de su trabajo Dur ante los años en los que se dedica al plan de Säynätsalo (), lt o abarca tanto la escala regional p lan.

El ayuntamiento de Saynatsalo, una de las más sobresalientes obras de lto es un conjunto pequeño de edificios, construido con fábrica de ladrillo visto y madera, organizado alrededor de un patio, que encierra muchos de los temas que desarrollo durante la práctica profesional. Título de propiedad (original y copia de ambos lados) si tiene gravamen, traer carta de no objeción del acreedor hipotecario con la firma legalizada por un Notario Público Plano de Mensura Catastral (copia) Certificado de uso de suelo vigente, Valor según el proyecto a ejecutar RD$2, ó RD$,. All unstructured text is available under the Creative Commons AttributionShareAlike License;.

El Ayuntamiento de Säynätsalo es para mí la obra maestra de lto, dentro de el podemos ver todas las etapas creativas por la que paso en su vida, el uso de la madera y el patio central, parecen inspirados en el romanticismo nórdico que tanto admiro en su épocas de estudiante. El ayuntamiento con el patio escalonado y la sala de mayor altura, evoca el esquema de Säynätsalo En el edificio de la biblioteca, elementos ortogonales y en forma de abanico son yuxtapuestos Este edificio evita entrar en competencia con el ayuntamiento, mostrándole una fachada alargada a de baja altura discretamente enfoscada en blanco. Tu contenido Suscripción a contenidos, trámites que necesitas conocer y eventos que más te gustan en Madrid y en tu distrito Tus trámites Toda la información sobre trámites y gestiones, tanto para ciudadanos como empresas, y ahora más fáciles de realizar en línea desde "Mi Carpeta" Comparte Ahora es más fácil compartir en madridesEn un sólo clic comparte todas las páginas.

Y en medio de todo esto, Saynatsalo, que por su ayuntamiento la conocerán Saynatsalo es un pequeño puebloisla muy cerca de Jyvaskyla, pero mucho más cerca de Muuratsalo Lugares que tienen mucho que decir en la historia vital de Alvar lto En 1949 el arquitecto finlandés estaba devastado por la prematura muerte de Aino. Sus edificios más famosos son las oficinas e imprenta de un periódico en Turku (), la Biblioteca de Viipuri y el sanatorio antituberculoso de Paimio () View Show abstract. AYUNTAMIENTO DE SAYNATSALO 1 Alvar lto Tras la Segunda Guerra Mundial, alrededor de 19 nació un impulso, donde arquitectos adoptaron los valores supuestamente eternos Claridad en la forma, proporciones elegantes y poca ornamentación 30 años mas joven que Frank Lloyd Wright y aproximadamente una década mas joven que Le Corbusier y Mies Van der Rohe, lto fue uno de los arquitectos.

SeeArch es un buscador de arquitectura y además pone a disposición de arquitectos y cualquier persona interesada en la arquitectura una nueva herramienta que facilite conocer obras de interés en cualquier parte del mundo. Ayuntamiento de Alvar lto El arquitecto Alvar lto diseñó una obra impresionante que fue la del Ayuntamiento de Saynatsalo,Finlandia A continuación se presentarán algunos planos de la planta baja, planta alta y perspectiva de dicha obra. El ayuntamiento de Saynatsalo , es el mas importante de los que hizo lto en toda su carrera profesional, por lo que significa para este pueblo finlandes y por su gran patriotismo plasmado en sus obras Es una obra interesante.

Ayuntamiento de Saynatsalo es una obra de Alvar lto construdia en Säynätsalo, Finlandia en el año 1950 1952 Ayuntamiento de Saynatsalo Ficha, Fotos y Planos WikiArquitectura Buscar. Dibujos De Arquitectura lto Hansaviertel, Berlin Planta tipus Guardado por Habitatge Col·lectiu 45 Dibujos De Arquitectura Arquitectura Contemporánea Arquitectura Interior Escalera Plantas Planeamento Urbano Hormigón Prefabricado Plantas De Apartamentos Vivienda Unifamiliar Planta Baja. Additional terms may apply.

Ocupando el centro de una pequeña ciudad agrícola en Finlandia, el Ayuntamiento de Säynätsalo puede parecer casi demasiado monumental para su contexto Diseñado por Alvar lto en 1949, el ayuntamiento es un estudio en oposición los elementos del clasicismo y lo monumental se mezclan con la modernidad y la intimidad para formar un nuevo. Ayuntamiento Säynätsalo Fotografía GV Gen´06 Pablo Canén Ubicación Dirección Säynätsalo es una pequeña isla, rodeada de bosques y lagos, ubicada a media hora de J vask la, la ciudad donde nació Alvar lto La reducida comunidad que habita la isla, de alrededor de 00 habitantes, se asienta en una urbanización de muy baja densidad conformada por viviendas esparcidas. Todo sobre los servicios socioculturales de Etxebarri Cultura, Juventud, Deporte, Euskera Guía Sociocultural Guía WEB Y TRÁMITES Guía de navegación por esta web etxebarrinet y realización de trámites telemáticos a través de ella Guía Web y Trámites.

Discussion Saynatsalo Town Hall Commentary "It is intimate and idiosyncratic, with an unusual layout directly responsive to the genius loci The various buildings forming the group—municipal offices, council chamber, library and officials' residences—are planned round a courtyard which is artificially raised above the surrounding wooded countryside by using the material excavated for the. El ayuntamiento de Säynätsalo (en finés, Säynätsalon kunnantalo) se encarga de gobernar la ciudad y el municipio de Säynätsalo, región de Finlandia Occidental () 1 Este organismo público está presidido por el alcalde de Säynätsalo 2 El edificio que ocupa actualmente es una de las obras más importantes del arquitecto finlandés Alvar lto y fue construido entre 1950 y 1952 3. This page was last edited on December 18, at 0528 Files are available under licenses specified on their description page All structured data from the file and property namespaces is available under the Creative Commons CC0 License;.

Ocupando el centro de una pequeña ciudad agrícola en Finlandia, el Ayuntamiento de Säynätsalo puede parecer casi demasiado monumental para su contexto Diseñado por Alvar lto en 1949, el ayuntamiento es un estudio en oposición los elementos del clasicismo y lo monumental se mezclan con la modernidad y la intimidad para formar un nuevo punto central cohesivo para la comunidad.

Www Coam Org Media Default files Fundacion Biblioteca Revista Arquitectura 100 1993 00 Docs Revista Completa Revista Arquitectura 1998 N315 Pdf

Ayuntamiento De Saynatsalo

Http Reia Es Reia13 Web Pdf

Mi Moleskine Arquitectonico Alvar lto Ayuntamiento De Saynatsalo

Resultado De Imagen Para Alvar lto Ayuntamiento De Saynatsalo Arquitectura Arquitectos Arquitectonico

Subido Por Edu Diseno Para El Concurso Del Ayuntamiento De Saynatsalo En Jyvaskyla Finlandia Diagram Architecture Architecture Alvar lto

Ayuntamiento De Saynatsalo Ficha Fotos Y Planos Wikiarquitectura

Http Oa Upm Es 1951 1 Elena Mata Mono 05 01 Pdf

Arquitextos 125 11 La Casa De La Ciudad Y La Ciudad En La Colina Vitruvius

Mi Moleskine Arquitectonico Alvar lto Ayuntamiento De Saynatsalo

Mi Moleskine Arquitectonico Alvar lto Ayuntamiento De Saynatsalo

Ayuntamiento De Saynatsalo Urbipedia Archivo De Arquitectura

Alvar lto Plataforma Arquitectura

Http Reia Es Reia13 01 Web Pdf

Ayuntamiento De Saynatsalo Wikipedia La Enciclopedia Libre

Fundacion Arquia Com Files Public Media 9nfzqzvlu9iq0xe9wjy 2yijcfg Mzc1mzc Ma Pdf Concurso Pdf Profile

Ayuntamiento De Saynatsalo

Ayuntamiento De Saynatsalo Ficha Fotos Y Planos Wikiarquitectura

Ayuntamiento De Saynatsalo Arquiscopio Archivo

Repositorio Upct Es Bitstream Handle 6432 Cmi Pdf Sequence 1 Isallowed Y

Ayuntamiento De Saynatsalo

Riunet Upv Es Bitstream Handle Memoria Anna huerta gallardo Pdf Sequence 2

Ayuntamiento De Saynatsalo En Planospara

Pin En Teo 2

Ayuntamiento De Saynatsalo Wikipedia La Enciclopedia Libre

Arquitextos 125 11 La Casa De La Ciudad Y La Ciudad En La Colina Vitruvius

Alvar lto Ayuntamiento Y Centro Municipal

Oriol Vano Cavaa Viaje A Finlandia 02 Hic Arquitectura

Fundacion Arquia Com Files Public Media 9nfzqzvlu9iq0xe9wjy 2yijcfg Mzc1mzc Ma Pdf Concurso Pdf Profile

Dialnet Unirioja Es Descarga Articulo Pdf

Ayuntamiento De Saynatsalo Arquiscopio Archivo

Rmن Auf Twitter Miercolesenladrillado Ayuntamiento De Saynatsalo 1949 Finlandia De Alvaraalto Justifico Su Altura Caballeros El Ayuntamiento Mas Bello Y Famoso Del Mundo El De Siena Tiene Una Camara Del Consejo De 16

Ayuntamiento De Saynatsalo Ficha Fotos Y Planos Wikiarquitectura

Ayuntamiento De Saynatsalo Arquiscopio Archivo

Ayuntamiento De Saynatsalo

Bim Y Representacion b By Antonio Varela

Ayuntamiento De Saynatsalo lto En Autocad Cad 695 35 Kb Bibliocad

Upcommons Upc Edu Bitstream Handle 2117 Iii Sem Saynatsalo Daniel Garcia Escudero Pdf

La Arquitectura Ayer Hoy Y Manana J M Avilan Revista Geometria Digital

Ayuntamiento De Saynatsalo Ayuntamiento Vestibulo De Entrada Edificios

Alvar lto By Samara Vidal

Upcommons Upc Edu Bitstream Handle 99 Dpa 13 28 armesto Pdf

Planos Del Ayuntamiento Saynatsalo

Ayuntamiento De Saynatsalo Arquiscopio Archivo

Ayuntamiento De Saynatsalo Ficha Fotos Y Planos Wikiarquitectura

Ayuntamiento De Saynatsalo Ficha Fotos Y Planos Wikiarquitectura

Ayuntamiento De Saynatsalo Alvar lto Saynatsalo 1948 Blog Arquitectura Y Diseno Inspirate Con Nuestros Interiores Y Casas De Diseno

Ayuntamiento De Saynatsalo Urbipedia Archivo De Arquitectura

Clasicos De Arquitectura Ayuntamiento De Saynatsalo Alvar lto Archdaily Colombia

Http Www Dspace Uce Edu Ec Bitstream 1 T Uce 0001 Arq 140 Pdf

Rua Ua Es Dspace Bitstream 1 17 Ruiz Caceres Reia Pdf

Saynaatsalo Alvar lto Arquitectura Arquitectos Arquitectonico

Ayuntamiento De Saynatsalo

Proyectos Importantes Descarga Gratis De Planos Archivos Y Bloques Sobre Arquitectura Y Construccion Buscador De Arquitectura

Ayuntamiento De Saynatsalo Alvar lto Saynatsalo 1948 Blog Arquitectura Y Diseno Inspirate Con Nuestros Interiores Y Casas De Diseno

Ayuntamiento De Saynatsalo Ficha Fotos Y Planos Wikiarquitectura

Ayuntamiento De Saynatsalo En Autocad Cad 140 55 Kb Bibliocad

Tema 8 El Nuevo Empirismo Nordico Arquitectura Nordica Alvar lto Arne Jacobsen Jorn Utzon Sverre Fehn Pdf Descargar Libre

Arquitextos 125 11 La Casa De La Ciudad Y La Ciudad En La Colina Vitruvius

Ayuntamiento De Saynatsalo Urbipedia Archivo De Arquitectura

Ayuntamiento De Saynatsalo

Www Researchgate Net Publication Vestigios De Alvar lto En La Opera Prima De Antonio Fernandez Alba 1959 62 Fulltext 5ad9eac60f5ac0fb Vestigios De Alvar lto En La Opera Prima De Antonio Fernandez Alba 1959 62 Pdf

Clasicos De Arquitectura Ayuntamiento De Saynatsalo Alvar lto Archdaily Colombia

Upcommons Upc Edu Bitstream Handle 2117 Iii Sem Saynatsalo Daniel Garcia Escudero Pdf

Ayuntamiento De Saynatsalo Ficha Fotos Y Planos Wikiarquitectura

Ayuntamiento De Saynatsalo

09 Patios Pagina 2

2

Ayuntamiento De Saynatsalo Urbipedia Archivo De Arquitectura

Ayuntamiento De Saynatsalo Alvar lto Saynatsalo 1948 Blog Arquitectura Y Diseno Inspirate Con Nuestros Interiores Y Casas De Diseno

Http Oa Upm Es 1 Parte 2 Capitulo 4 Alvar lto Opt Pdf

Saynatsalo Luz10

Ayuntamiento De Saynatsalo Urbipedia Archivo De Arquitectura

Arquitextos 125 11 La Casa De La Ciudad Y La Ciudad En La Colina Vitruvius

Arquitextos 125 11 La Casa De La Ciudad Y La Ciudad En La Colina Vitruvius

Rmن Miercolesenladrillado Ayuntamiento De Saynatsalo 1949 Finlandia De Alvaraalto Planos Originales Presentados Al Concurso Una Maqueta Y Un Video Que Muestra Detalles E Interior T Co Ooqqrxx4cw Y Si Quereis Saber Mas

Arquitectura Asombrosa Ayuntamiento De Saynatsalo Saynatsalon Kunnantalo

Dialnet Unirioja Es Descarga Articulo Pdf

Mi Moleskine Arquitectonico Alvar lto Ayuntamiento De Saynatsalo

Mi Moleskine Arquitectonico Alvar lto Ayuntamiento De Saynatsalo

Plans Of Architecture Alvar lto Town Hall 1949 1952 Saynatsalo Alvar lto Architecture Healthcare Architecture

Ayuntamiento De Saynatsalo

Ayuntamiento De Saynatsalo Wikipedia La Enciclopedia Libre

Descarga Gratis Ayuntamiento De Si Yni Tsalo Archivo Tipo Dwg

Ayuntamiento De Saynatsalo

Arquitextos 125 11 La Casa De La Ciudad Y La Ciudad En La Colina Vitruvius

Ayuntamiento De Saynatsalo

Dialnet Unirioja Es Descarga Articulo Pdf

Mi Moleskine Arquitectonico Alvar lto Ayuntamiento De Saynatsalo

Ayuntamiento De Saynatsalo

Clasicos De Arquitectura Ayuntamiento De Saynatsalo Alvar lto Archdaily Colombia

Saynatsalo Town Hall Alvar lto Landscape And Urbanism Architecture Commercial And Office Architecture

Upcommons Upc Edu Bitstream Handle 2117 Iii Sem Saynatsalo Daniel Garcia Escudero Pdf

Fundacion Arquia Com Files Public Media 9nfzqzvlu9iq0xe9wjy 2yijcfg Mzc1mzc Ma Pdf Concurso Pdf Profile